PERSIANE
Persiane con lamelle orientabili e fisse
CARATTERISTICHE E ACCESSORI
- chiusura con spagnoletta
- cremonese in alluminio
- cremonese in alluminio con chiave
- cerniera reversibile con piastrina di aggancio
- cerniera reversibile collo lungo
- cardini a murare
meccanismo cava 31 mm per lamella a goccia - azionamento lamelle con maniglia a leva
- fermo imposta automatico a muro con ammotizzatore
- cantonale regolabile
- occhiello corto, diametro 12 mm
Persiana con antina alla genovese
CARATTERISTICHE E ACCESSORI
- chiusura a spagnoletta
- cremonese in alluminio
cremonese in alluminio con chiave - cerniera reversibile con piastrina di aggancio
- cerniera reversibile collo lungo
- cardini a murare
- selle in plastica
- fermo imposta automatico a muro con ammotizzatore
- cantonale regolabile
- occhiello corto, diametro 12 mm
Persiane con doghe verticali e orizzontali
CARATTERISTICHE E ACCESSORI
- chiusura a spagnoletta
cremonese in alluminio - cremonese in alluminio con chiave
cerniera reversibile con piastrina di aggancio - cerniera reversibile collo lungo
cardini a murare - selle in plastica
- fermo imposta automatico a muro con ammotizzatore
- cantonale regolabile
- occhiello corto, diametro 12 mm
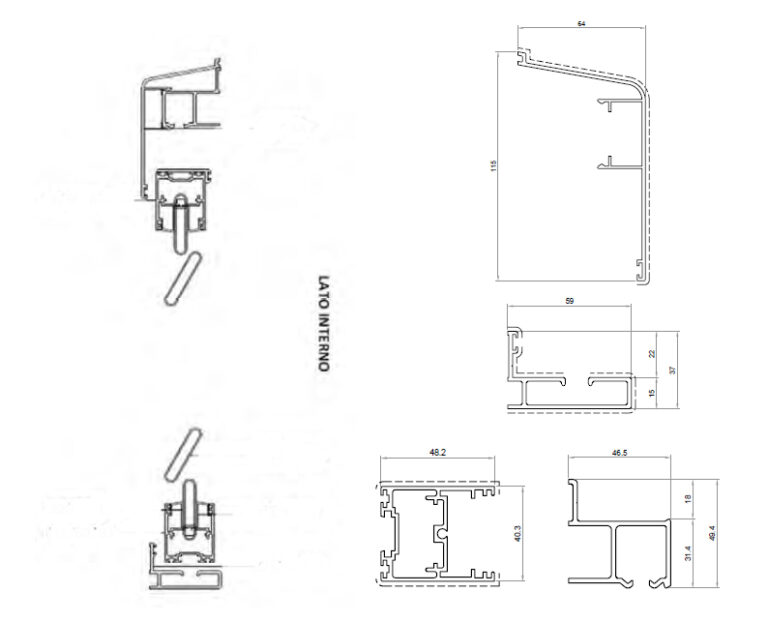
Persiane scorrevole con mantovana (esterno muro)
CARATTERISTICHE E ACCESSORI
- chiusura con maniglia a pinza (soluzione a due ante)
- maniglia in nylon (soluzione 1 anta)
- selle in plastica
- guida a rullo in fibra
carrello scorrevole - catenaccio a leva ad avvitare con riscontro (soluzione ad 1 anta)
- spazzolino da 7 × 7 mm e 7 × 11 mm
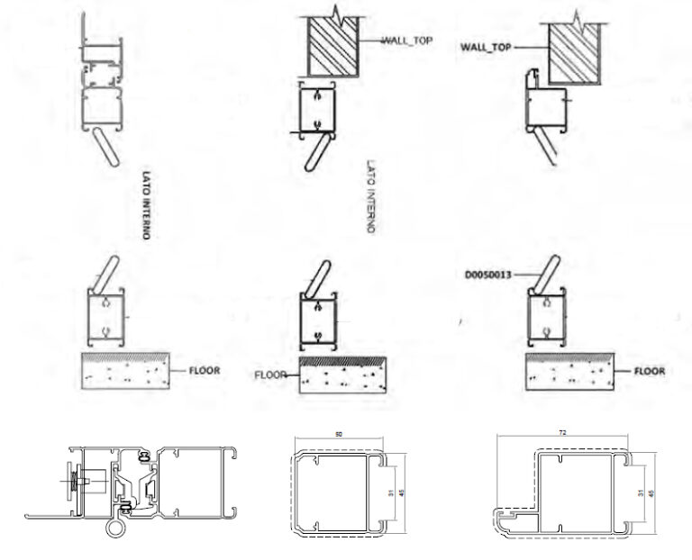
Persiane scorrevole dentro muro
CARATTERISTICHE E ACCESSORI
- chiusura centrale persiane a due ante:
maniglia incassata a vaschetta piu la chiusura a gancio, sull’anta secondaria - maniglia fissa a vaschetta
- chiusura laterale persiana a un’anta:
maniglia a vaschetta piu catenaccio inferiormente - carrelli registrabili per persiana scorrevole interno muro
- catenaccio a leva ad avvitare con riscontro
